MODELADO
Ingeniería de diseño y analisis
de elemento finito
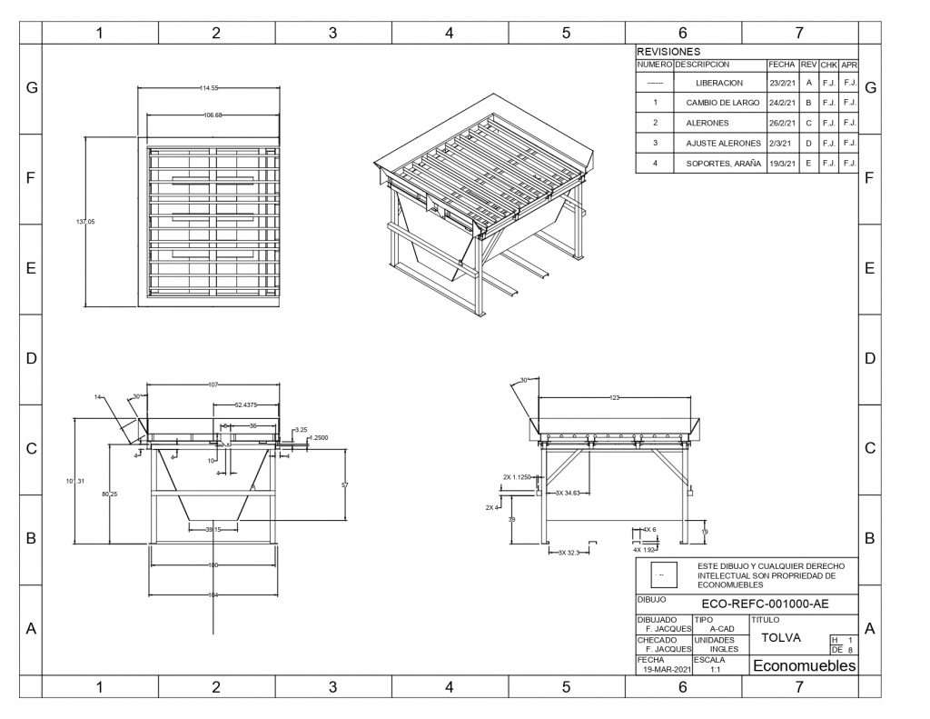
Diseño de Sistemas compuestas de Cribación y/o Trituración: Tolvas y Bandas
Tolvas para usos múltiples, con diseño para para diferentes tonelajes, que incluye sistemas para una fácil puesta, uso y mantenimiento e incluyendo conceptos para minimizar tiempos muertos. Diseño incluye materiales que cumplen las necesidades de uso, ya sea por medio de aceros A36, Hardox, etc. Se puede disponer de otras opciones que permiten adecuarnos a la naturaleza de cada producto de nuestros clientes
